New build Sanlorenzo SL96A 2024

Fastforwarding now to week 1 of December 2023, and there's quite a lot of progress. Sanlorenzo said that building this boat is quite like building a prototype, and that they have increased the workforce on it to the size normally use for prototypes, so progress has been quite fast.

First the hull is all antifouled (sprayed) and boot topped, and basically ready for launch apart from Propspeed (which has since been applied). The waterline has been painted 60mm higher than standard, because from seeing the boats in the flesh and online I think it is painted too low on the standard boat, and this one is also a little heavier than most:
Build-400-231208-under-hull-JPEG.jpg

Build-401-231208-under-hull.jpg

Build-402-231208-under-hull.jpg


Next a few pics of side deck and garage area, again well on the way to completion:
Build-403-231208-side-deck.jpg

Build-404-231208-side-deck.jpg

Build-405-231208-garage.jpg

Build-406-231208-garage.jpg


Foredeck is also close to completion. You can see (wrapped in yellow) the extra capstans I asked for, so 4 capstans in all. All 400v 3ph electric
Build-409-231208-foredeck-distant.jpg

Build-410-231208-foredeck-close.jpg

Build-410a-231208-foredeck-seating.jpg


Now moving to the interior, below is the salon, well on the way, though sometimes hard to see because of the protection material. The wood floor is laid but covered in white protection, apart from one little patch on the starboard side where you can see the (dark) colour
Build-413-231208-salon-centre.jpg

Build-413a-231208-salon-from-port-aft.jpg

Build-414-salon-port-side-table.jpg

Build-416-231208-salon-from-fwd-port-side-looking-aft-JPEG.jpg


The stbd side of the salon will have sofas and along the port side there is this long window seat. The table is on an electric hi-lo mechanism and also slides athwartships a bit
Build-415-231208-salon-port-side-window-seat-JPEG.jpg


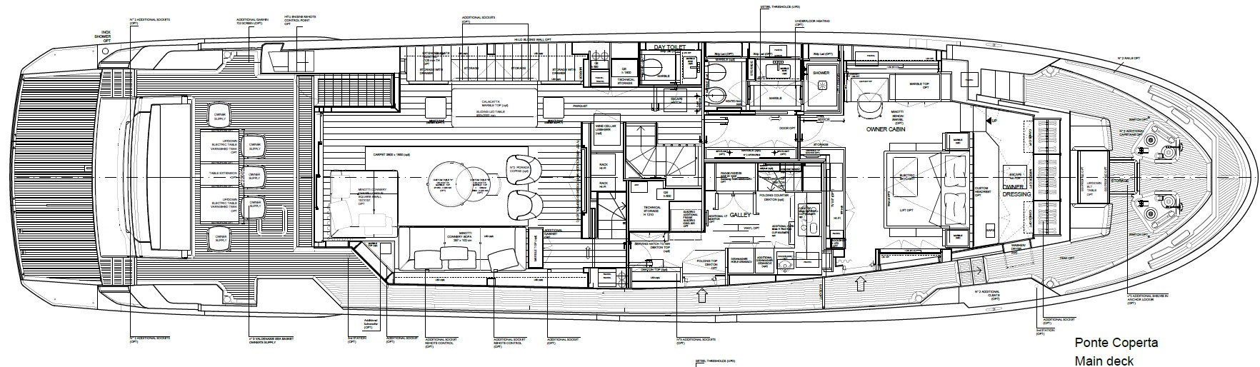
Reminder of layout:
GA-main-v25.jpg

Interior-salon-lkg-port-v6.jpg

Interior-salon-lkg-stbd-fwd-v6.jpg


To be continued...
 
Now moving to salon port side forward, and the corridor that takes you to day head, guest staircase and owner cabin:
Build-420-salon-port-side-corridor-forward.jpg


Then below is owner cabin looking forwards:
Build-421-231208-owner-cabin-looking-fwd-JPEG.jpg



Then at the forward end of owner cabin looking down into the dressing area, and the dressing area itself (where, as yo can see I added a washing machine just for this cabin so as not to need to use the crew-operatred laundry zone):
Build-425-owner-cabin-looking-forward.jpg

Build-422-231208-owner-cabin-looking-fwd-into-dressing-JPEG.jpg

Build-423-owner-dressing-area.jpg

Build-424-owner-dressing-area-w-machine.jpg



Below is the bureau to port side of owner cabin, and a close up of one of the nightstands showing the slatting, bronze framing, and marble top, all custom. There is no door handle, just an edge at the top that you can grip. There are no door knobs or handles on any cupboard in the boat
Build-426-owner-cabin-bureau.jpg

Build-426a-owner-cabin-nightstand.jpg


As you can maybe see in the GA, there is a lobby that you enter before getting into the owner's cabin proper, so you pass through two door before getting to the bedroom area. The bathroom is port side of this lobby (photo is looking aftwards)
Build-427-owner-cabin-lobby.jpg



Video of bathroom:

to be continued (20 limit still applies)
 
Quick look at pilothouse. Lots of work still to do and km's of wiring. I have departed from the black colour inside the pilothouse and used a light stone coloured leather.
Build-450-pilothouse.jpg

Build-451-pilothouse.jpg


Next some pics of lower deck cabins and bathrooms - self explanatory.
Build-460-lower-deck-VIP-cabin.jpg

Build-461-lower-deck-VIP-shower.jpg

Build-462-lower-deck-VIP-shower.jpg


Next, a load of pics of flybridge:
Build-470-fly-helm-chairs.jpg

Build-471-fly-helm-chair-detail.jpg

Build-472-fly-helm.jpg

Build-475-fly-aft.jpg

Build-476-fly-looking-at-garage-door.jpg

Build-477-fly.jpg

Build-478-231208-fly-view-forward-from-helm.jpg

Build-479-231208-fly-forward-sunbed.jpg


This black mounting rack has been specially made to hold 5 x 22 inch Garmin screens, sort of floating:
Build-474-fly-aft.jpg

Dash-Pilothouse-render-3.jpg



There are two Hoshizaki restaurant quality icemakers on the flybridge - I don't want to use/repair U line icemakers any more
Build-473-fly-hoshizaki.jpg


Finally, aft deck and engine room. engines are very hard to photograph because space is tight and they are covered up, so I will get better pictures later.

Build-412-231208-aft-deck-and-garage-door.jpg

Build-490-engine-room.jpg


Launch is planned for week of 15th January (3 weeks) though boat will not be finished then, and handover should be around end of March
 
Oh, nearly forgot, a few pics of crew area. There are 3 crew cabins each with twin bunks and each with ensuite shower room. Again. all covered in white protection board - the panels are actually light oak and the floor is Amtico style darker oak:

Build-440-crew-corridor-looking-forward.jpg

Build-442-231208-crew-cabin-small.jpg

Build-444-231208-crew-cabin-large.jpg

Build-445-231208-crew-cabin-ceiling.jpg

Build-448-231208-crew-stairs.jpg


The bow cabin, for the captain or senior crew, has turned out really nice:

At the very front of crew zone is a storage compartment in the v of the bow. Here you can also see the hot water circulation pump and plumbing. The whole hot/cold water system is plumbed in brass fittings and manifolds, solid pipes, and crimped "hydraulic style" flexible hoses, insulated in the case of hot water pipes. There is no Hep2O type piping as you would get in a fairpinseek.
Build-446-231208-crew-bow-storage.jpg

Build-447-231208-crew-bow-storage.jpg
 
Thats incredible. thank you so much for sharing this. It's something very few people ever experience. We were in Croatia last summer and saw a 90 ish footer San Lorenzo called "Noor" Stunning, absolutely beautiful, I think Match will be even greater.
I recently took a few people onto my "project" and was very surprised at their reaction to what is one step away from being crushed. It's very easy to forget how many people have never had the good fortune to step on board any serious kind of boat. If they saw this I think they would faint. I think I just did and I have been aboard a few. This is something else. Is the pale wood Japanese oak?
Can't wait to see it in the water. Happy New Year.
 
Last edited:
She looks like a fantastic boat JFM, really beautiful. Love the large windows throughout. Stabilizers on and lounging with a G&T whilst at sea - magic. I hope you enjoy many years on her and the launch goes well.

Now the engineer in me, wonders why the pump in the last image shown in #648, is not moved to the left a bit to avoid it discharging immediately into an elbow? Mind you the quality of the pipework install looks great. Assume that's a NRV between the valve on the flow and the tee!

Now if that's the only constructive criticism, it cant be bad!!!!

Happy New Year to you and Yours.
 
She looks like a fantastic boat JFM, really beautiful. Love the large windows throughout. Stabilizers on and lounging with a G&T whilst at sea - magic. I hope you enjoy many years on her and the launch goes well.

Now the engineer in me, wonders why the pump in the last image shown in #648, is not moved to the left a bit to avoid it discharging immediately into an elbow? Mind you the quality of the pipework install looks great. Assume that's a NRV between the valve on the flow and the tee!

Now if that's the only constructive criticism, it cant be bad!!!!

Happy New Year to you and Yours.
Haha thanks John. Yup, fair point, though the pump has a swept outlet and the elbow itself is fairy swept, compared with the corresponding one on the left.

The pipework is as you say pretty amazing quality, and a far cry from Hep2O style. Perhaps just for the hell of it, because Hep2O is kinda ok and certainly ok in a house where nothing moves.

Yes I guess that is a NRV. Makes some sense, just about. I'm not sure I understand fully the layout, particular pipes 2,3,4,5 counting from the left. I get drawings with the boat so can maybe figure it out later.

John I know you understand this, but for benefit of readers not into plumbing, the purpose of the green pump is to circulate continuously (on a timer, so not at night) hot water from the hot water cylinder, in a loop, so that there is always hot water within 1.5metres of every tap/shower on the boat. Then when you want hot water, even at the tap that is furthest away like the transom shower, it is instant and you don't have to wait for 30 seconds of cold to run through the pipes before you get hot water.
 
Thats incredible. thank you so much for sharing this. It's something very few people ever experience. We were in Croatia last summer and saw a 90 ish footer San Lorenzo called "Noor" Stunning, absolutely beautiful, I think Match will be even greater.
I recently took a few people onto my "project" and was very surprised at their reaction to what is one step away from being crushed. It's very easy to forget how many people have never had the good fortune to step on board any serious kind of boat. If they saw this I think they would faint. I think I just did and I have been aboard a few. This is something else. Is the pale wood Japanese oak?
Can't wait to see it in the water. Happy New Year.
Noor is a 102 (now rebadged 106), the next size up. Same number of cabins, same engines, and all round similar, but 199 tons GRT interior volume rather than my c150, so each room is just a bit bigger. I would have loved to buy that one or even the 120, but the 96A is the max you can drive on a "private licence" under 24m LLL, so that was why I chose the 96
 
Last edited:
Noor is a 102, the next size up. Same number of cabins, same engines, and all round similar, but 199 tons GRT interior volume rather than my c150, so each room is just a bit bigger. I would have loved to buy that one or even the 120, but the 96A is the max you can drive on a "private licence" under 24m LLL, so that was why I chose the 96

Do you have the bateau permis Hauturier ?
 
Then when you want hot water, even at the tap that is furthest away like the transom shower, it is instant and you don't have to wait for 30 seconds of cold to run through the pipes before you get hot water.
On top of not having to wait, that is also a good way to avoid wasting hot water, because without recirculation, during those 30 seconds hot water immediately starts flowing out of the heater cylinder, but is actually used only with some delay.
Which means that for any given usage time, without recirculation there's a slightly higher consumption of hot water compared to straight plumbing.
No big deal when the heater cylinder capacity is massive, as I'm sure it is on boats like this, but on more human boats with 50 liters or so heaters, every little bit counts...
 
Small point on the valves and their fittings. There would be no problem with DZR - as the initials suggest the material is Dezincification Resistant and lasts as well as bronze - ie indefinitely. The material to avoid is 60/40 plain brass as used in most domestic plumbing . DZR valve bodies are normally marked CR to differentiate. You are not alone in confusing the two - even the tame surveyors writing in the mags get it wrong even though they have been corrected several times. It is unusual so see bronze ball valves plated like the ones in the photo - I have only seen that on 60/40. Bronze is normally as cast like the elbows that do indeed look like bronze although they can also be made of 60/40 but that is in its bare form much more yellow.

I would not be happy with those valves without confirmation from the manufacturer that they are indeed bronze. BTW DZR is typically less than half the price of bronze and just as good
Threaded Lever Handed Ball Valves

Plain brass are of course even cheaper (but only for fuel or fresh water) and as you can see can be plated like the ones in your photo
asap-supplies.com/fittings-valves-strainers/valves-spares/lever-handle-ball-valves
The colour of the handles is BTW irrelevant

Sorry to give you something else to worry about when I am sure there are much more exciting things going on with your lovely boat. Bit different from when I bought my last new Bavaria. email on a Friday saying work would start next Monday. All documents sent over a week later for final payment. Boat arrived in the Hamble the following Saturday!

Edit

Looking at those pumps and pipework again, you say they are for black and grey water. Presumably your loos are all fresh water flush and you don't have seawater in the galley, so only fresh water and waste will run through them and then be removed by shore based pumpouts, or if discharged at sea through normal seacocks. If that is the case then unlikely ever to have to deal with seawater and plated brass bodies for the valves would be OK. The actual seacocks (if any) should of course be either DZR, bronze or composite, particularly the threaded fittings which are what causes issues of dezincification if they are 60/40 brass.
 
Last edited:
Many thanks for the update JFM. She is going to be a magnificent craft. I too admired Noor last summer. Looks like you chose this forum over partying last evening? Great to see you have taken JRudges’s advice re dishwashers. One clean, one dirty, so no need to decant everything to cupboards.
 
On top of not having to wait, that is also a good way to avoid wasting hot water, because without recirculation, during those 30 seconds hot water immediately starts flowing out of the heater cylinder, but is actually used only with some delay.
Which means that for any given usage time, without recirculation there's a slightly higher consumption of hot water compared to straight plumbing.
No big deal when the heater cylinder capacity is massive, as I'm sure it is on boats like this, but on more human boats with 50 liters or so heaters, every little bit counts...
On the flip side, you’re radiating heat from the water constantly, you need stupendous insulation on all your HW pipework. Works best on high occupancy structures, where hot water is frequently drawn. That's a ‘don’t try this at home, folks’. Unless you have 13 children. On a boat, yes it saves water, but you’d be burning 20% more to heat it. Thank the Lord for calorifiers.
 
Top