justanothersailboat
Well-Known Member
Thanks. Just read your thread - so sorry to hear about the problems you had in the summer! Still, I think when you're done you'll probably have the best Pionier 9 in the world.





2 different approaches at play hereThe image posted above sets out the aspiration, based on a 10% weight reduction and a 10% sail area increase. The increased sail area with a new rig is an easy win. The weight reduction goal is more difficult. Removing the diesel engine, shaft, prop etc and replacing it with an electric pod drive makes a big contribution despite the weight of batteries, however realising the remaining 200kg savings will be tough.
i couldnt agree more. defo i would need a naval architect doing the calculations.Any changes to the keel would need significant input from a naval architect. This is one part of the boat that needs more precise engineering calculations than I am confident to make.











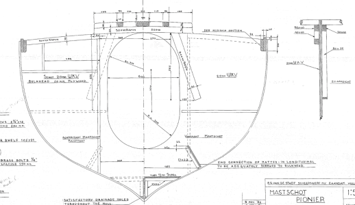
Hi!Hi, very interesting to see your solution to reinforcing the main bulkhead to take the mast compression forces. Did you calculate the forces and design the reinforcement to support the load with a safety factor, or did you do a rule-of-thumb calculation. Also interested to understand your choice of material. You seem to have great access to G10 but choose to use metal (is that steel or alloy) is there any reason you ruled out G10 or a composite structure for the support. I have to make a decision on whether to replace the existing wooden supports to my main bulkhead with an alternative and was thinking about using composite
i was writing my reply as you posted this.This sketch shows very roughly what I have in mind - the laminate schedule will have to taper from the top to the bottom and I might use uni-directional fibres sandwiched in bi-axial to maximise strength to weight.
View attachment 175601
This sketch shows very roughly what I have in mind - the laminate schedule will have to taper from the top to the bottom and I might use uni-directional fibres sandwiched in bi-axial to maximise strength to weight.
View attachment 175601